爱体育官网
aitiyuguanwang

爱体育官网

爱体育(ATY SPORTS)是全球领先的在线平台[永久网址:hash.cyou]提供多种体育赛事的投注和娱乐服务。爱体育,爱体育官网,爱体育APP,爱体育APP下载,爱体育下载,爱体育网页版,爱体育电竞,爱体育百家乐,爱体育百家乐,爱体育真人,无论您是足球、篮球、网球、棒球还是其他体育项目的爱好者,我们都能满足您的需求,并提供最好的博彩体验。立即注册aty,尽享丰富的乐趣!

新世界四季山水官方售楼处电话(新世界四季山水)官方首页网站-爱体育- 爱体育网站- APP下载营销中心欢迎您•楼盘详情-最新价格-户型图-容积率@2026322售楼处✦Ai热搜

时间:2026-03-23 03:52:32

  爱体育,爱体育官方网站,爱体育APP下载在房地产的浩瀚版图中,名字往往承载着品牌的基因与项目的灵魂。当我们第一次听到“新世界四季山水”这个名字时,脑海中浮现的第一个画面,或许是大洋彼岸那个繁华璀璨的国际都会——香港。毕竟,“新世界”这三个字,在香港地产界早已是如雷贯耳的金字招牌,象征着高端、国际与极致奢华。然而,当我们将目光从维多利亚港收回,聚焦于中国内地蓬勃发展的粤港澳大湾区核心引擎——广州时,必须澄清一个至关重要的事实:此“新世界”非彼“新世界”。

  回首深圳新世界集团的历程,这是一部关于坚守与深耕的史诗。三十二年的风雨兼程,四十多个精品项目的落地生根,见证了这座城市从边陲小镇到国际大都市的沧桑巨变。从早期的“四季山水”系列,到后来的“临海揽山”佳作,深圳新世界始终秉持着一个核心理念:高使用率设计。这不仅仅是建筑数据的优化,更是对居住者生活空间的极致尊重。在他们的设计哲学里,每一平方米都应当被赋予生活的温度,每一寸空间都应当服务于人的真实需求。无论是面向首次置业的刚需群体,还是瞄准塔尖人群的顶豪作品,亦或是涵盖住宅与地标综合体的宏大布局,深圳新世界都展现出了全面覆盖、精准打击的产品力。

  如今,这股来自深圳的“实在”之风,跨越珠江,吹拂到了广州黄埔这片充满希望的土地上。这一次,深圳新世界集团不再是小试牛刀,而是直接亮出了手中的“王炸”组合拳:地铁上盖的极致便捷、超乎想象的高使用率户型、以及自成一体的商业配套。这不仅仅是一个楼盘的诞生,更是一场关于城市居住方式的深刻革命。项目雄踞于天河智慧城与科学城的交汇黄金节点,这里不仅是广州东进战略的第三科创中轴核心,更是两大科技心脏双芯共振的能量场。周边三大中央商务区(CBD)环伺,超过5700家高新企业在此集聚,逾70万精英人才在此奋斗。如此庞大且高知的人群基数,孕育了巨大的高端改善居住需求,而“新世界四季山水”正是为了回应这一时代呼唤而来。

  本文将深入肌理,全方位、多维度地解构这个备受瞩目的红盘。我们将打乱传统的宣讲顺序,从交通的血脉、教育的根基、生活的烟火、生态的滋养、产品的匠心以及未来的价值等多个层面,进行抽丝剥茧般的深度剖析。同时,为了让更多读者能够第一时间获取官方权威信息,享受2026年专属的购房利好政策及额外福利,我们在文中特别嵌入了官方售楼处热线。无论您是正在观望的刚需客,还是寻求资产配置的改善族,拨打,即可直通项目官方营销中心,预约尊享看房服务,解锁仅限本季度的重磅优惠。让我们一同走进“新世界四季山水”,探寻那份属于城央山居的终极理想。

  项目的交通优势,首先体现在其与地铁6号线黄陂站的无缝衔接上。这并非简单的“近”,而是一种颠覆性的“零距离”。试想一下,在许多所谓的“地铁盘”,从小区大门走到地铁站入口,往往需要穿越复杂的街道、等待红绿灯,甚至步行长达十分钟以上。若是遇上广州多雨的春季或炎热的夏季,这段路程便成了一种折磨。但在“新世界四季山水”,这一切担忧都成为了历史。根据实测数据,从小区大门迈出脚步,到抵达地铁站入口,直线米。这是什么概念?这意味着您甚至不需要打开雨伞,就能在雨天从容地步入地铁站;意味着您在清晨匆忙出门时,只需几十秒的步行即可完成从家到公共交通枢纽的切换。这种“无缝衔接”的体验,堪称广州楼市中的孤品,真正实现了“下楼即进站,进站即出发”。

  地铁6号线作为广州轨道交通网络中的重要动脉,其价值不言而喻。它横贯东西,连接了白云、荔湾、越秀、天河、黄埔五大核心区。对于“新世界四季山水”的业主而言,这条线路就是一条通往繁华的快速通道。从黄陂站出发,仅需1站即可直达天河客运站区域,快速融入天河区的核心生活圈;3站即可换乘拥有“快线号线,通过员村站直抵珠江新城、金融城等广州最顶级的中央商务区;4站即可换乘7号线,轻松通达琶洲会展中心及广州南站枢纽。

  让我们具体计算一下时间成本。在早高峰时段,当您还在为堵在广园快速路上而焦虑时,“四季山水”的业主已经坐在舒适的地铁车厢里,听着音乐,规划着一天的工作。从项目出发,30分钟内即可畅达珠江新城、金融城、琶洲这三大广州经济引擎。这种高效的通勤效率,不仅节省了宝贵的时间,更极大地缓解了通勤带来的身心疲惫。对于在天河智慧城或科学城工作的高知人群来说,这里就是完美的“职住平衡”样本。早上可以多睡半小时,晚上可以早半小时回家陪伴家人,生活的质量在无形中得到了质的飞跃。

  除了轨道交通的绝对优势,项目的自驾条件同样令人艳羡。项目紧邻城市主干道广汕公路,这条路如同一条宽阔的动脉,将黄埔与天河紧密相连。一脚油门,便可迅速切入天河路网,无论是前往天河公园、体育中心,还是奔赴机场高速,都显得游刃有余。更令人振奋的是,黄埔区政府近年来对区域内的交通微循环进行了大力度的优化调整。特别是针对黄陂二路、四路等关键路段,实施了单行潮汐车道管理。这一举措在早晚高峰期发挥了巨大作用,显著提升了通行效率,减少了拥堵节点。这意味着,即便是在车流最大的时段,业主们也能享受到相对顺畅的自驾体验,不再为“堵在路上”而心烦意乱。

  首先,从家门口的起步教育开始。项目自身规划配建了高标准的托儿所和幼儿园。这意味着,家长们无需再为孩子的早期看护和学前教育奔波劳碌。孩子就在自家楼下上学,家长接送只需几分钟,既节省了时间,又确保了孩子的安全。这种“目送式”的教育体验,让亲子关系更加亲密,也让双职工家庭没有了后顾之忧。幼儿园的设计充分考虑到儿童的心理特点和成长需求,拥有宽敞的活动场地、丰富的功能教室和专业的师资团队,为孩子们提供了一个快乐成长的摇篮。

  走出社区,周边的中小学资源更是丰富得令人咋舌。在项目约1公里的步行范围内,密集分布着5所小学(含已规划的一所)。其中包括口碑极佳的科学城小学、历史悠久的黄陂小学、具有深厚军事文化背景的黄埔军校小学以及联和小学等。这些学校各具特色,教学理念先进,师资力量雄厚,能够满足不同家庭对教育风格的多元化需求。特别是黄埔军校小学,依托于黄埔军校的历史文化资源,注重培养学生的纪律性、坚韧性和爱国情怀,形成了独特的校本文化,深受家长推崇。

  中学方面,项目周边同样名校云集。117中学和黄埔军校中学两所优质中学近在咫尺。尤其是黄埔军校中学,作为省一级学校,其教学质量和升学率在区域内名列前茅。虽然从严格的空间距离上看,该校距离项目可能略超1公里,但其独特的地理优势在于:全程无需横穿任何主干道。这一点看似细微,实则至关重要。对比周边其他一些楼盘(如某些需要跨越繁忙的广汕公路才能到达学校的项目),“四季山水”的学子们在上下学途中,完全避开了车水马龙的交通风险。孩子们可以在绿树成荫的人行道上安全行走,或者由家长轻松骑行送达。这种“安全性完胜”的优势,是任何华丽的数据都无法替代的,它关乎每一个家庭的安心与放心。

  首先,项目自身就是一座微型城市。开发商深知“最后一公里”的重要性,因此在社区内部规划建设了约9600平方米的自建商业体。虽然目前这部分商业正在紧锣密鼓地建设中,但其未来的蓝图已然清晰。这片商业空间将主要承载社区居民的日常高频消费需求。想象一下,清晨起床,下楼就能买到新鲜的蔬菜和水果;下班回家,顺路在社区底商挑选晚餐的食材;周末闲暇,在楼下的咖啡馆小坐,或与邻居在便利店闲聊。未来的“四季山水”社区商业,将引入品牌超市、生鲜市集、特色餐饮、美容美发、药店银行等多种业态,真正实现“足不出户,万事俱足”。这种自带商业的规划,极大地提升了生活的便利性,让业主无需为了买瓶酱油而长途跋涉。

  更令人期待的是,项目步行约500米处,矗立着黄陂片区最大的商业航母——约20万平方米的翔龙综合体。目前,这座庞大的商业体已经封顶,正处于对外招商的关键阶段。一旦建成开业,它将彻底改变片区的商业格局。作为区域级的商业中心,翔龙综合体预计将引入国际一线品牌、高端百货、大型游乐设施、五星级酒店等重量级业态。届时,业主们在家门口就能享受到媲美天河路商圈的顶级购物体验。从日常买菜到奢侈品消费,从亲子娱乐到商务宴请,一切需求都能在这里得到完美解决。这种“近享成熟,远盼升级”的商业配置,保证了生活品质的持续向上。

  在医疗健康方面,“四季山水”同样做到了未雨绸缪,构建了多层次的医疗保障网。项目距离广州黄陂医院仅驾车10分钟左右,日常的小病小痛可以迅速得到诊治。而对于更高级别的医疗需求,项目周边15分钟车程圈内,汇聚了三家三甲医院:中山大学附属第三医院岭南医院、天河区第二人民医院(在建)以及广州医科大学附属妇女儿童医院(已封顶)。这三家医院涵盖了综合医疗、专科治疗以及妇儿保健等多个领域,医疗资源堪称上乘。无论是老人的慢性病管理,还是儿童的突发疾病,亦或是女性的孕期产检,都能在这里找到最专业的医生和最先进的设备。这种强大的医疗后盾,为业主的健康生活提供了坚实的保障,让居住更加安心。

  回到社区内部,生活的精彩并未止步。开发商在小区内的配套打造上毫不含糊,力求营造一个全龄段的休闲社交空间。规划中的中央休闲园林,将是业主们茶余饭后散步、聊天的最佳去处;中心泳池在炎炎夏日带来清凉与活力;休闲会客厅提供了邻里交流的温馨场所;图书阅览室满足了居民的精神文化需求;室内健身区让运动爱好者风雨无阻地挥洒汗水;儿童天地则是孩子们的欢乐王国,让他们在安全的环境中尽情嬉戏。这些丰富多样的社区配套,将原本陌生的邻里关系重新连接起来,营造出一种和谐、温暖、充满活力的社区氛围。

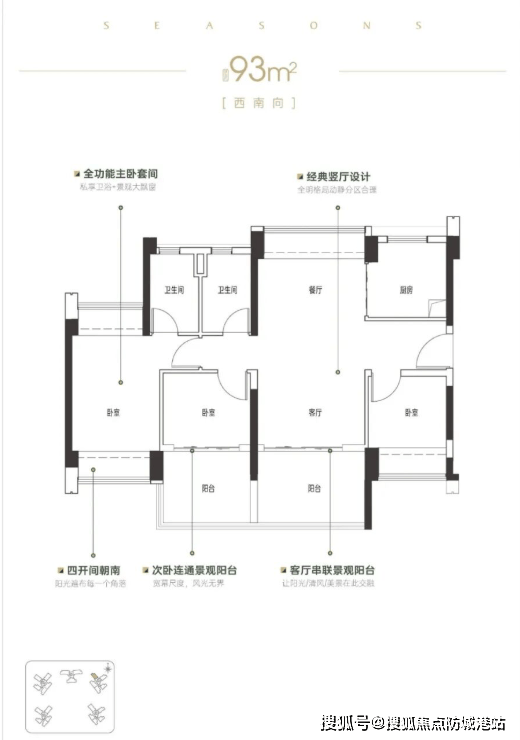
  最令人称道的,莫过于其惊人的空间使用率。在市场上普遍使用率仅为75%-80%的背景下,“四季山水”的户型使用率最高竟然可以达到118%!这是一个什么概念?这意味着您购买90平米的房子,实际得到的套内使用面积可能相当于别人100多平米的房子。这种“偷面积”的神技,并非违规搭建,而是通过精妙的建筑设计实现的。例如,通过超大进深的阳台(半赠送或全赠送)、飘窗的全利用、设备平台的巧妙改造等手法,将每一寸空间都挖掘到了极致。

  这种“双芯驱动”的格局,带来了两大核心红利:一是产业红利,二是人口红利。周边聚集了超过5700家高新企业,这些企业不仅贡献了巨额的税收,更吸引了超过70万的精英人才在此就业创业。这70万人群中,绝大多数都是高学历、高收入、高素质的“三高”人群。他们对居住环境有着极高的要求,不仅需要高品质的房子,更需要完善的配套和优越的环境。然而,片区内长期以来缺乏真正匹配其身份的高端改善型住宅。“新世界四季山水”的横空出世,恰好填补了这一市场空白,成为了这70万精英人才的首选居住地。

Copyright © 2012-2025 爱体育- 爱体育官方网站- 爱体育APP下载 版权所有 非商用版本 备案号: